臥式熱水循環泵空調循環泵結構圖
時間:2013-2-19 來源:揚子江泵業 瀏覽數:2013
ISW、ISWR、ISWH、ISWD、ISWRD、ISWHD、ISWYD系列臥式單級單吸管道離心泵(簡稱熱水循環泵)根據IS型離心泵與立式泵的獨特結構組合設計,并嚴格按照國際標準ISO2858和新的國家管道離心泵標準JB/T53058-93進行設計制造的高效節能產品。該泵采用國內先進水力模型優化設計而成。同時根據使用溫度、介質等不同在ISW型基礎上派生出熱水泵、高溫泵、化工泵、油泵等,是目前國家標準定型推廣產品。
產品特點
泵軸的絕對同心度及葉輪優異的動靜平衡,保證平穩運行,絕無振動,不同材質的硬質合金密封,保證了不同介質輸送均無泄漏,結構簡單合理,關鍵部分采用國際一流品質配套,整機無故障工作時間大大提高。維修方便,更換密封、軸承、簡易方便。系列流量范圍1.5~2000m3/h,揚程范圍5~125m
產品用途
(1)ISW臥式清水泵,供輸送清水及物理化學性質類似于清水的其他液體之用,適用于工業和城市給排水、高層建筑增壓送水、園林噴灌、消防增壓、遠距離輸送、暖通制冷循環、浴室等冷暖水循環增壓及設備配套,使用溫度≤80℃。(2)ISWR臥式熱水泵廣泛適用于冶金、化工、紡織、造紙以及賓管、飯店等鍋爐熱水循環增壓及城市采暖系統。ISW型使用溫度T≤120℃。(3)ISWH臥式化工泵,供輸送不含固體顆粒、具有腐蝕性、粘度類似于水液體,適用于石油、化工、冶金、電力、造紙、食品、制藥及合成纖維等部門,使用溫為-20-120℃。(4)ISWB臥式管道油泵,供輸送油、煤油、柴油等油類產品或燃、易爆液體,被輸送介質溫度-20-120℃。
| ISW臥式清水泵 | |||||||||
| 型 號 | 流 量Q | 揚程 m |
效率 % |
轉速 r/min |
電機功率 KW |
允許汽蝕余量 m |
|||
| m3/h | l/s | ||||||||
| 15-80 | 1.5 | 0.42 | 8 | 34 | 2800 | 0.18 | 2.3 | ||
| 20-110 | 2.5 | 0.69 | 15 | 34 | 2800 | 0.37 | 2.3 | ||
| 20-160 | 2.5 | 0.69 | 32 | 25 | 2900 | 0.75 | 2.3 | ||
| 25-110 | 4 | 1.11 | 15 | 42 | 2900 | 0.55 | 2.3 | ||
| 25-125 | 4 | 1.11 | 20 | 36 | 2900 | 0.75 | 2.3 | ||
| 25-125A | 3.6 | 1.0 | 16 | 35 | 2900 | 0.55 | 2.3 | ||
| 25-160 | 4 | 1.11 | 32 | 32 | 2900 | 1.5 | 2.3 | ||
| 25-160A | 3.7 | 1.03 | 28 | 31 | 2900 | 1.1 | 2.3 | ||
| 32-100 | 4.5 | 12.5 | 12.5 | 44 | 2900 | 0.55 | 2.3 | ||
| 32-100(I) | 6.3 | 1.75 | 12.5 | 54 | 2900 | 0.75 | 2.3 | ||
| 32-125 | 5 | 1.39 | 20 | 44 | 2900 | 0.75 | 2.3 | ||
| 32-125A | 4.5 | 1.25 | 16 | 43 | 2900 | 0.55 | 2.3 | ||
| 32-160 | 6.5 | 5 | 32 | 44 | 2900 | 1.5 | 2.3 | ||
| 32-160A | 4 | 1.1 | 25 | 34 | 2900 | 1.1 | 2.0 | ||
| 32-160(I) | 6.3 | 1.75 | 32 | 40 | 2900 | 2.2 | 2.0 | ||
| 32-200 | 4.5 | 12.5 | 50 | 32 | 2900 | 3 | 2.0 | ||
| 32-200(I) | 6.3 | 1.75 | 50 | 33 | 2900 | 4 | 2.0 | ||
| 32-200A | 4 | 1.11 | 44 | 40 | 2900 | 2.2 | 2.0 | ||
| 40-100 | 6.3 | 1.75 | 12.5 | 54 | 2900 | 0.55 | 2.3 | ||
| 40100A | 5.6 | 1.56 | 10 | 52 | 2900 | 0.37 | 2.3 | ||
| 40-125 | 6.3 | 1.75 | 20 | 46 | 2900 | 1.1 | 2.3 | ||
| 40-125A | 5.6 | 1.56 | 16 | 45 | 2900 | 0.75 | 2.3 | ||
| 40-160 | 6.3 | 1.75 | 32 | 40 | 2900 | 2.2 | 2.3 | ||
| 40-160A | 5.9 | 1.64 | 28 | 39 | 2900 | 1.5 | 2.3 | ||
| 40-160B | 5.5 | 1.53 | 24 | 38 | 2900 | 1.1 | 2.3 | ||
| 40-200 | 6.3 | 1.75 | 50 | 33 | 2900 | 4 | 2.3 | ||
| 40-200A | 5.9 | 1.64 | 44 | 31 | 2900 | 3 | 2.3 | ||
| 40-200B | 5.3 | 1.47 | 36 | 29 | 2900 | 2.2 | 2.3 | ||
| 40-250 | 6.3 | 1.75 | 80 | 28 | 2900 | 7.5 | 2.3 | ||
| 40-250A | 5.9 | 1.64 | 70 | 28 | 2900 | 5.5 | 2.3 | ||
| 40-250B | 5.5 | 1.53 | 60 | 27 | 2900 | 4 | 2.3 | ||
| 40-100(I) | 12.5 | 3.47 | 12.5 | 62 | 2900 | 1.1 | 2.3 | ||
| 40-100(I)A | 11 | 3.05 | 10 | 60 | 2900 | 0.75 | 2.3 | ||
| 40-125(I) | 12.5 | 3.47 | 20 | 58 | 2900 | 1.5 | 2.3 | ||
| 40-125(I)A | 11 | 3.05 | 16 | 57 | 2900 | 1.1 | 2.3 | ||
| 40-160(I) | 12.5 | 3.47 | 32 | 52 | 2900 | 3 | 2.3 | ||
| 40-160(I)A | 11.7 | 3.25 | 28 | 51 | 2900 | 2.2 | 2.3 | ||
| 40-160(I)B | 10.4 | 2.89 | 22 | 50 | 2900 | 1.5 | 2.3 | ||
| 40-200(I) | 12.5 | 3.47 | 50 | 46 | 2900 | 5.5 | 2.3 | ||
| 40-200(I)A | 11.7 | 3.25 | 44 | 45 | 2900 | 4 | 2.3 | ||
| 40-200(I)B | 10.6 | 2.94 | 36 | 44 | 2900 | 3 | 2.3 | ||
| 40-250(I) | 12.5 | 3.47 | 80 | 38 | 2900 | 11 | 2.3 | ||
| 40-250(I)A | 11.6 | 3.22 | 70 | 38 | 2900 | 7.5 | 2.3 | ||
| 40-250(I)B | 10.8 | 3.0 | 60 | 37 | 2900 | 7.5 | 2.3 | ||
| 40-250(I)C | 10.0 | 2.78 | 52 | 36 | 2900 | 5.5 | 2.3 | ||
| 50-100 | 12.5 | 3.47 | 12.5 | 62 | 2900 | 1.1 | 2.3 | ||
| 50-100A | 11 | 3.05 | 10 | 60 | 2900 | 0.75 | 2.3 | ||
| 50-125 | 12.5 | 3.47 | 20 | 58 | 2900 | 1.5 | 2.3 | ||
| 型 號 | 流 量Q | 揚程 m |
效率 % |
轉速 r/min |
電機功率 KW |
允許汽蝕余量 m |
|
| m3/h | l/s | ||||||
| 50-125A | 11 | 3.05 | 16 | 57 | 2900 | 1.1 | 2.3 |
| 50-160 | 12.5 | 3.47 | 32 | 52 | 2900 | 3 | 2.3 |
| 50-160A | 11.7 | 3.25 | 28 | 51 | 2900 | 2.2 | 2.3 |
| 50-160B | 10.4 | 2.89 | 22 | 50 | 2900 | 1.5 | 2.3 |
| 50-200 | 12.5 | 3.47 | 50 | 46 | 2900 | 5.5 | 2.3 |
| 50-200A | 11.7 | 3.25 | 44 | 45 | 2900 | 4 | 2.3 |
| 50-200B | 10.6 | 2.94 | 36 | 44 | 2900 | 3 | 2.3 |
| 50-250 | 12.5 | 3.47 | 80 | 38 | 2900 | 11 | 2.3 |
| 50-250A | 11.6 | 3.22 | 70 | 38 | 2900 | 7.5 | 2.3 |
| 50-250B | 10.8 | 3.0 | 60 | 37 | 2900 | 7.5 | 2.3 |
| 50-250C | 10.0 | 2.78 | 52 | 36 | 2900 | 5.5 | 2.3 |
| 50-100(I) | 25 | 6.94 | 12.5 | 69 | 2900 | 1.5 | 2.5 |
| 50-100(I)A | 22.3 | 6.19 | 10 | 67 | 2900 | 1.1 | 2.5 |
| 50-125(I) | 25 | 6.94 | 20 | 68 | 2900 | 3 | 2.5 |
| 50-125(I)A | 22.3 | 6.19 | 16 | 66 | 2900 | 2.2 | 2.5 |
| 50-160(I) | 25 | 6.94 | 32 | 63 | 2900 | 4 | 2.5 |
| 50-160(I)A | 23.4 | 6.5 | 28 | 62 | 2900 | 4 | 2.5 |
| 50-160(I)B | 21.6 | 6.0 | 24 | 58 | 2900 | 3 | 2.5 |
| 50-200(I) | 25 | 6.94 | 50 | 58 | 2900 | 7.5 | 2.5 |
| 50-200(I)A | 23.5 | 6.53 | 44 | 57 | 2900 | 7.5 | 2.5 |
| 50-200(I)B | 21.8 | 6.06 | 38 | 55 | 2900 | 5.5 | 2.5 |
| 50-250(I) | 25 | 6.94 | 80 | 50 | 2900 | 15 | 2.5 |
| 50-250(I)A | 23.4 | 6.5 | 70 | 50 | 2900 | 11 | 2.5 |
| 50-250(I)B | 21.6 | 6.0 | 60 | 49 | 2900 | 11 | 2.5 |
| 50-315(I) | 25 | 6.94 | 125 | 40 | 2900 | 30 | 2.5 |
| 50-315(I)A | 23.7 | 6.58 | 113 | 40 | 2900 | 22 | 2.5 |
| 50-315(I)B | 22.5 | 6.25 | 101 | 39 | 2900 | 18.5 | 2.5 |
| 50-315(I)C | 20.6 | 5.72 | 85 | 38 | 2900 | 15 | 2.5 |
| 65-100 | 25 | 6.94 | 12.5 | 69 | 2900 | 1.5 | 2.5 |
| 65-100A | 22.3 | 6.19 | 10 | 67 | 2900 | 1.1 | 2.5 |
| 65-125 | 25 | 6.94 | 20 | 68 | 2900 | 3 | 2.5 |
| 65-125A | 22.3 | 6.19 | 16 | 66 | 2900 | 2.2 | 2.5 |
| 65-160 | 25 | 6.94 | 32 | 63 | 2900 | 4 | 2.5 |
| 65-160A | 23.4 | 6.5 | 28 | 62 | 2900 | 4 | 2.5 |
| 65-160B | 21.6 | 6.0 | 24 | 58 | 2900 | 3 | 2.5 |
| 65-200 | 25 | 6.94 | 50 | 58 | 2900 | 7.5 | 2.5 |
| 65-200A | 23.5 | 6.53 | 44 | 57 | 2900 | 7.5 | 2.5 |
| 65-200B | 21.8 | 6.06 | 38 | 55 | 2900 | 5.5 | 2.5 |
| 65-250 | 25 | 6.94 | 80 | 50 | 2900 | 15 | 2.5 |
| 65-250A | 23.4 | 6.5 | 70 | 50 | 2900 | 11 | 2.5 |
| 65-250B | 21.6 | 6.0 | 60 | 49 | 2900 | 11 | 2.5 |
| 65-315 | 25 | 6.94 | 125 | 40 | 2900 | 30 | 2.5 |
| 65-315A | 23.7 | 6.58 | 113 | 40 | 2900 | 22 | 2.5 |
| 65-315B | 22.5 | 6.25 | 101 | 39 | 2900 | 18.5 | 2.5 |
| 65-315C | 20.6 | 5.72 | 85 | 38 | 2900 | 15 | 2.5 |
| 65-100(I) | 50 | 13.9 | 12.5 | 73 | 2900 | 3 | 3.0 |
| 65-100(I)A | 44.7 | 12.4 | 10 | 72 | 2900 | 2.2 | 3.0 |
| 65-125(I) | 50 | 13.9 | 20 | 72.5 | 2900 | 5.5 | 3.0 |
| 型 號 | 流 量Q | 揚程 m |
效率 % |
轉速 r/min |
電機功率 KW |
允許汽蝕余量 m |
|
| m3/h | l/s | ||||||
| 65-125(I)A | 45 | 12.5 | 16 | 71 | 2900 | 4 | 3.0 |
| 65-160(I) | 50 | 13.9 | 32 | 71 | 2900 | 7.5 | 3.0 |
| 65-160(I)A | 46.7 | 13.0 | 28 | 70 | 2900 | 7.5 | 3.0 |
| 65-160(I)B | 43.3 | 12.0 | 24 | 69 | 2900 | 5.5 | 3.0 |
| 65-200(I) | 50 | 13.9 | 50 | 67 | 2900 | 15 | 3.0 |
| 65-200(I)A | 47 | 13.1 | 44 | 66 | 2900 | 11 | 3.0 |
| 65-200(I)B | 43.5 | 12.1 | 38 | 65 | 2900 | 7.5 | 3.0 |
| 65-250(I) | 50 | 13.9 | 80 | 59 | 2900 | 22 | 3.0 |
| 65-250(I)A | 46.7 | 13.0 | 70 | 59 | 2900 | 18.5 | 3.0 |
| 65-250(I)B | 43.3 | 12.0 | 60 | 58 | 2900 | 15 | 3.0 |
| 65-315(I) | 50 | 13.9 | 125 | 54 | 2900 | 37 | 3.0 |
| 65-315(I)A | 46.5 | 12.9 | 110 | 54 | 2900 | 30 | 3.0 |
| 65-315(I)B | 44.5 | 12.4 | 100 | 53 | 2900 | 30 | 3.0 |
| 65-315(I)C | 41 | 11.4 | 85 | 51 | 2900 | 22 | 3.0 |
| 80-100 | 50 | 13.9 | 12.5 | 73 | 2900 | 3 | 3.0 |
| 80-100A | 44.7 | 12.5 | 10 | 72 | 2900 | 2.2 | 3.0 |
| 80-125 | 50 | 13.9 | 20 | 72.5 | 2900 | 5.5 | 3.0 |
| 80-125A | 45 | 12.5 | 16 | 71 | 2900 | 4 | 3.0 |
| 80-160 | 50 | 13.9 | 32 | 71 | 2900 | 7.5 | 3.0 |
| 80-160A | 46.7 | 13.0 | 28 | 70 | 2900 | 7.5 | 3.0 |
| 80-160B | 43.3 | 12.0 | 24 | 69 | 2900 | 5.5 | 3.0 |
| 80-200 | 50 | 13.9 | 50 | 67 | 2900 | 15 | 3.0 |
| 80-200A | 47 | 13.1 | 44 | 66 | 2900 | 11 | 3.0 |
| 80-200B | 43.5 | 12.1 | 38 | 65 | 2900 | 7.5 | 3.0 |
| 80-250 | 50 | 13.9 | 80 | 59 | 2900 | 22 | 3.0 |
| 80-250A | 46.7 | 13.0 | 70 | 59 | 2900 | 18.5 | 3.0 |
| 80-250B | 43.3 | 12.0 | 60 | 58 | 2900 | 15 | 3.0 |
| 80-315 | 50 | 13.9 | 125 | 54 | 2900 | 37 | 3.0 |
| 80-315A | 46.5 | 12.9 | 110 | 54 | 2900 | 30 | 3.0 |
| 80-315B | 44.5 | 12.4 | 100 | 53 | 2900 | 30 | 3.0 |
| 80-315C | 41 | 11.4 | 85 | 51 | 2900 | 22 | 3.0 |
| 80-350 | 50 | 13.9 | 150 | 66 | 2900 | 55 | 3.0 |
| 80-350A | 44.5 | 12.4 | 142 | 65 | 2900 | 45 | 3.0 |
| 80-350B | 41 | 11.4 | 135 | 62 | 2900 | 37 | 3.0 |
| 80-100(I) | 100 | 27.8 | 12.5 | 76 | 2900 | 5.5 | 4.5 |
| 80-100(I)A | 89 | 24.7 | 10 | 74 | 2900 | 4 | 4.5 |
| 80-125(I) | 100 | 27.8 | 20 | 76 | 2900 | 11 | 4.5 |
| 80-125(I)A | 89 | 24.7 | 16 | 74 | 2900 | 7.5 | 4.5 |
| 80-160(I) | 100 | 27.8 | 32 | 76 | 2900 | 15 | 4.5 |
| 80-160(I)A | 93.5 | 26.0 | 28 | 74 | 2900 | 11 | 4.5 |
| 80-160(I)B | 86.6 | 24.1 | 24 | 72 | 2900 | 11 | 4.5 |
| 80-200(I) | 100 | 27.8 | 50 | 74 | 2900 | 2 | 4.5 |
| 80-200(I)A | 93.5 | 26.0 | 44 | 73 | 2900 | 18.5 | 4.5 |
| 80-200(I)B | 87 | 24.2 | 38 | 71 | 2900 | 15 | 4.5 |
| 80-250(I) | 100 | 27.8 | 80 | 69 | 2900 | 37 | 4.5 |
| 80-250(I)A | 93.5 | 26.0 | 70 | 68 | 2900 | 30 | 4.5 |
| 80-250(I)B | 87 | 24.2 | 60 | 66 | 2900 | 30 | 4.5 |
| 80-315(I) | 100 | 27.8 | 125 | 66 | 2900 | 75 | 4.5 |
| 型 號 | 流 量Q | 揚程 m |
效率 % |
轉速 r/min |
電機功率 KW |
允許汽蝕余量 m |
|
| m3/h | l/s | ||||||
| 80-315(I)A | 95 | 26.4 | 113 | 66 | 2900 | 55 | 4.0 |
| 80-315(I)B | 90 | 25 | 101 | 65 | 2900 | 45 | 4.0 |
| 80-315(I)C | 82 | 22.8 | 85 | 63 | 2900 | 37 | 4.0 |
| 100-100 | 100 | 27.8 | 12.5 | 76 | 2900 | 5.5 | 4.5 |
| 100-100A | 89 | 47 | 10 | 74 | 2900 | 4 | 4.5 |
| 100-125 | 100 | 27.8 | 20 | 76 | 2900 | 11 | 4.5 |
| 100-125A | 89 | 24.7 | 16 | 74 | 2900 | 7.5 | 4.5 |
| 100-160 | 100 | 27.8 | 32 | 76 | 2900 | 15 | 4.5 |
| 100-160A | 93.5 | 26.0 | 28 | 74 | 2900 | 11 | 4.5 |
| 100-160B | 86.6 | 24.1 | 24 | 72 | 2900 | 11 | 4.5 |
| 100-200 | 100 | 27.8 | 50 | 74 | 2900 | 22 | 4.0 |
| 100-200A | 93.5 | 26.0 | 44 | 73 | 2900 | 18.5 | 4.0 |
| 100-200B | 87 | 24.2 | 38 | 71 | 2900 | 15 | 4.0 |
| 100-250 | 100 | 27.8 | 80 | 69 | 2900 | 37 | 4.0 |
| 100-250A | 93.5 | 26.0 | 70 | 68 | 2900 | 30 | 4.0 |
| 100-250B | 87 | 24.2 | 60 | 66 | 2900 | 30 | 4.0 |
| 100-315 | 100 | 27.8 | 125 | 66 | 2900 | 75 | 4.0 |
| 100-315A | 95 | 26.4 | 113 | 66 | 2900 | 55 | 4.0 |
| 100-315B | 90 | 25 | 101 | 65 | 2900 | 45 | 4.0 |
| 100-315C | 82 | 22.8 | 85 | 63 | 2900 | 37 | 4.0 |
| 100-100(I) | 160 | 44.4 | 12.5 | 73 | 2900 | 11 | 4.5 |
| 100-125(I) | 160 | 44.4 | 20 | 74 | 2900 | 15 | 4.5 |
| 100-125(I)A | 140 | 39 | 17 | 72 | 2900 | 11 | 4.5 |
| 100-160(I) | 160 | 44.4 | 32 | 32 | 2900 | 22 | 5.6 |
| 100-160(I)A | 140 | 39 | 28 | 28 | 2900 | 18.5 | 5.0 |
| 100-200(I) | 100 | 44.4 | 50 | 50 | 2900 | 37 | 5.2 |
| 100-200(I)A | 140 | 39 | 45 | 45 | 2900 | 30 | 4.5 |
| 100-200(I)B | 100 | 27.8 | 40 | 40 | 2900 | 22 | 4.5 |
| 100-250(I) | 160 | 44.4 | 80 | 80 | 2900 | 55 | 4.8 |
| 100-250(I)A | 140 | 39 | 72 | 72 | 2900 | 45 | 4.5 |
| 100-250(I)B | 100 | 27.8 | 65 | 65 | 2900 | 37 | 4.5 |
| 100-350 | 100 | 27.8 | 150 | 150 | 2900 | 90 | 4.0 |
| 100-350A | 87 | 24.2 | 142 | 142 | 2900 | 75 | 4.0 |
| 100-350B | 82 | 22.8 | 135 | 135 | 2900 | 55 | 4.0 |
| 125-100 | 160 | 44.4 | 12.5 | 12.5 | 2900 | 11 | 4.0 |
| 125-100A | 143 | 39.7 | 10 | 10 | 2900 | 7.5 | 4.0 |
| 125-125 | 160 | 44.4 | 20 | 20 | 2900 | 15 | 4.0 |
| 125-125A | 143 | 39.7 | 16 | 16 | 2900 | 11 | 4.0 |
| 125-160 | 160 | 44.4 | 32 | 32 | 2900 | 22 | 4.0 |
| 125-160A | 150 | 41.7 | 28 | 28 | 2900 | 18.5 | 4.0 |
| 125-160B | 138 | 38.3 | 24 | 24 | 2900 | 15 | 4.0 |
| 125-200 | 160 | 44.4 | 50 | 50 | 2900 | 37 | 5.5 |
| 125-200A | 150 | 41.7 | 44 | 44 | 2900 | 30 | 5.5 |
| 125-200B | 138 | 38.3 | 37.5 | 37.5 | 2900 | 22 | 5.5 |
| 125-250 | 160 | 44.4 | 80 | 80 | 2900 | 55 | 5.0 |
| 125-250A | 150 | 41.7 | 70 | 70 | 2900 | 45 | 5.5 |
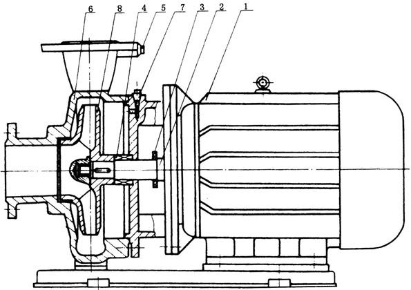
結構圖

1 電動機:直接與水泵聯接傳送動力,采用名牌電機。
2 泵軸:與電機同軸,為電機加長軸,確保了軸的同心,使泵運轉平穩。無噪音和振動現象,采用鍍鉻處理,增強了使用壽命。
3 擋水圈:防止因密封漏水而使電機進水。
4 機械密封:采用不銹鋼、碳化鎢、氟橡膠等材料制成。平衡式耐高溫。高壓機械密封,運行壽命長,不滲漏,對軸無磨損,不積水垢,保證工作環境的整潔。
5 取壓塞:可安裝壓力表直觀監控泵的正常高效運行
6 泵體:壓出塞和吸入室采用優秀水力模型設計而成,既美觀又高效,設有安裝底腳,便于安裝和運行穩固。
7 放氣塞:灌泵時排凈泵內空氣,保證了泵的正常啟動。
8 葉輪:采用先進的水力模型設計而成,具有高效率,可靠性好等特點。
感謝您訪問我們揚子江泵業的網站www.ixunmeng.cn,如有任何水泵疑問我們一定會盡心盡力為您提供優質的服務.
