你的位置:網站首頁 >> 閥門知識 >> SZB型水環式真空泵的結構說明
SZB型水環式真空泵的結構說明
時間:2012-12-8 來源:揚子江泵業 瀏覽數:542
| 一、SZB型水環式真空泵概述: SZB型水環式真空泵是懸臂式水環真空泵,可供抽吸空氣或其它無腐蝕性、不溶于水、不含固體顆粒的氣體。低吸入壓力為-0.086Mpa。被廣泛用于機械、石油、化工、制藥、食品等工業及其它領域。特別適合于做大型水泵引水用。 SZB型水環式真空泵目前制造的本型號泵有:SZB-4、 SZB-8。其中4(8)表示當水銀柱高為520毫米時的氣量(升/秒)。 |
|||||||||||||||||||||||||||||||||||||||||||||||||||||||||||||||
二、SZB型水環式真空泵型號說明:![]() |
|||||||||||||||||||||||||||||||||||||||||||||||||||||||||||||||
| 三、SZB型水環式真空泵技術參數表: | |||||||||||||||||||||||||||||||||||||||||||||||||||||||||||||||
|
|||||||||||||||||||||||||||||||||||||||||||||||||||||||||||||||
| 注: 1、真空度從40%到90%或壓力從0.05MPa到0.15MPa的吸排氣量隨著供水量的大小 ,葉輪與側蓋的間隙大小而變化,葉輪與側蓋的間隙大小而變化,特別是流量較小時,如果調整不準確更容易引起偏小 2、表內數值是在下列條件下得出:①水溫15℃; ②空氣20℃; ③氣體相對溫度70%;④大氣壓力0.1013MPa 3、表內性能偏差不超過5% |
|||||||||||||||||||||||||||||||||||||||||||||||||||||||||||||||
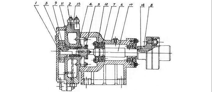
四、SZB型水環式真空泵的結構說明: ![]() |
|||||||||||||||||||||||||||||||||||||||||||||||||||||||||||||||
|
圖一:SZB型水環式真空泵的結構圖
|
|||||||||||||||||||||||||||||||||||||||||||||||||||||||||||||||
SZB型水環式真空泵結構如圖一所示、工作室由泵體(2)、泵蓋(1)構成,上有進排氣口(詳見圖二),下有放水螺塞(15)(見圖二),泵蓋上有指示旋轉方向的箭頭,泵體有填料函和填料壓蓋(5),內裝填料(4)密封,泵體側面的螺絲孔(16)(見圖二)為補充水環消耗用水。 由鑄鐵制成葉輪(3),有12個葉片呈放射狀均分布,有平衡孔(其中兩個套扣供拆卸用)平衡軸向力。葉輪平鍵(9)與軸(10)聯接并可沿軸向滑動調節間隙。軸為優質鋼制成,支承在泵的托架((6)內的兩個滾珠軸承(17)上,右端有彈性聯軸器(8)和電機直接聯接。托架(6)用鑄鐵制成,有止口保證與泵體準確聯接,軸承間有空腔,可存潤滑油,用稀油或黃油滑均可。從傳動方向看,SZB型水環式真空泵泵軸為逆時針方向旋轉(右邊法蘭為排氣口,左邊法蘭為進氣口)。 |
|||||||||||||||||||||||||||||||||||||||||||||||||||||||||||||||
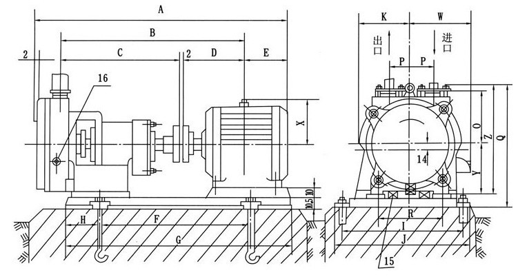
五、SZB型水環式真空泵安裝尺寸: |
|||||||||||||||||||||||||||||||||||||||||||||||||||||||||||||||
![]() |
|||||||||||||||||||||||||||||||||||||||||||||||||||||||||||||||
|
圖二:SZB型水環式真空泵安裝尺寸圖
|
|||||||||||||||||||||||||||||||||||||||||||||||||||||||||||||||
|
|||||||||||||||||||||||||||||||||||||||||||||||||||||||||||||||
| 六、SZB型水環式真空泵安裝說明: | |||||||||||||||||||||||||||||||||||||||||||||||||||||||||||||||
![]() |
|||||||||||||||||||||||||||||||||||||||||||||||||||||||||||||||
|
圖三:帶有汽水分離器的SZB型水環式真空泵安裝尺寸圖
|
|||||||||||||||||||||||||||||||||||||||||||||||||||||||||||||||
| 設備須根據圖二進行安裝 1.SZB型水環式真空泵用來作水泵引水用時,其安裝位置與水泵之間距離要寬敞一些,以便水泵和真空泵檢修時方便。 2.SZB型水環式真空泵的吸氣管道不可有漏氣現象。其地基尺寸以安裝圖或以實物測量進行施式。 3.SZB型水環式真空泵軸與電機軸須保持水平,不允許有不同心的現象(詳見圖二)。基礎必須結實可靠。灌入水泥后,干至48小時,重新檢查安裝是否有變化,然后將底腳螺栓擰緊,不可有松動現象。 4.如須安裝汽水分離器時可參看圖三。 |
|||||||||||||||||||||||||||||||||||||||||||||||||||||||||||||||
七、SZB型水環式真空泵的維護: 1、SZB型水環式真空泵啟動前,須檢査電機旋轉方向是否與泵的旋轉方向相符。啟動SZB型水環式真空泵后,檢査填料壓緊程度是否適當(填料不宜過緊,正常壓緊填料能使泵中的水成滴的向外漏出)軸承運轉、潤滑是否正常。 2、SZB型水環式真空泵啟動后,從泵上的冷卻管(安在泵體側面的螺絲孔)(16)灌入冷卻水,有汽水分離器者可從汽水分離器注入。供水量大小對泵的真空度、抽氣量以及功率消耗均有影響,因此供水管的尺寸應嚴格控制在規定范圍內,使壓力在.MPa左右為宜,因此在供水管路上應裝有閥門來調節供水量度大小。 3、SZB型水環式真空泵正常運轉時,須檢査是否有振動,細聽泵內是否有雜聲、并測定填料函和軸承溫度(正常軸承溫度不得比環境溫度高出35℃但工作溫度不得超過70℃)如果溫度超高應立即停車檢查原因。 4、SZB型水環式真空泵作為水泵引水用時,其運轉期間將水泵內的空氣全部吸出,直到將水泵內吸出水來以后,即開動水泵, 待水泵正常工作后將真空泵停車,并將吸氣管路的閥門關閉。 5、SZB型水環式真空泵停車須按下列順序: 1)關閉進氣管路上閘閥。 2)關閉供水管路上的閘閥,停水后不宜立即停泵,應使泵繼續運轉1-2分鐘,排出部分工作液。 3)關閉電動機。 4)如果停車時間超過一天,須將泵體底部的螺塞打開將泵體內水放凈。 6、SZB型水環式真空泵在下列條件下使用時,應加裝附屬設備。 1)被抽除空氣或氣體中含有灰塵,必須在進氣管上安裝過濾器。 2)被抽氣體中含有大量蒸汽時,必須在進氣管前加裝冷凝器。 3)抽除帶有腐蝕性氣體時,在進入SZB型水環式真空泵前,必須進行中和。 4)被抽除的氣體或空氣的溫度超過35℃,在進入泵前必須經過冷卻裝置,以保證它的溫度不超過35℃。 5)被抽除的氣體或空氣中含有大量液體時,必須在SZB型水環式真空泵的進氣管前裝置分離器。 6)SZB型水環式真空泵的起動電流往往超過電機額定電流幾倍,必須配用起動開關。 |
|||||||||||||||||||||||||||||||||||||||||||||||||||||||||||||||
感謝您訪問我們揚子江泵業的網站www.ixunmeng.cn,如有任何水泵疑問我們一定會盡心盡力為您提供優質的服務.









